Verkocht onder voorbehoud:Populierenstraat 12, 5382 KG Vinkel - Foto
Verkocht onder voorbehoud
+54

Populierenstraat 12 5382 KG Vinkel € 675.000,- k.k.

  • Woonhuis
  • 4 kamers
  • 3 slaapkamers
  • 2 badkamers
  • Bouwjaar 1999
  • 465 m² perceeloppervlakte
  • 140 m² gebruiksoppervlakte
  • A Energielabel A

Beschrijving

Royale en levensloopbestendige vrijstaande woning op een mooi perceel in de dorpskern van Vinkel!

Ben je op zoek naar ruimte, comfort en een fijne ligging? Dan is deze vrijstaande woning in Vinkel precies wat je zoekt. Deze ruime en uitstekend onderhouden woning biedt niet alleen een sfeervolle moderne keuken, een royale living, twee zeer ruime slaapkamers, badkamer op de eerste verdieping, maar ook een slaapkamer met en suite badkamer op de begane grond. Perfect voor gezinnen én voor wie levensloopbestendig wil wonen. De zonnige tuin, de inpandige garage en eigen oprit maken het plaatje compleet. Bovendien is de woning dankzij 14 zonnepanelen (2018), en een hybride warmtepomp (2024) energiezuinig en voorzien van energielabel A, wat bijdraagt aan een duurzame en toekomstbestendige woning.
Deze woning is gelegen in een rustige woonwijk. Je vindt de dagelijkse voorzieningen, zoals een supermarkt, school en sportfaciliteiten om de hoek. Tegelijkertijd wandel je binnen enkele minuten de natuur in. De uitvalswegen richting Oss, Nijmegen en ’s-Hertogenbosch zijn goed bereikbaar.

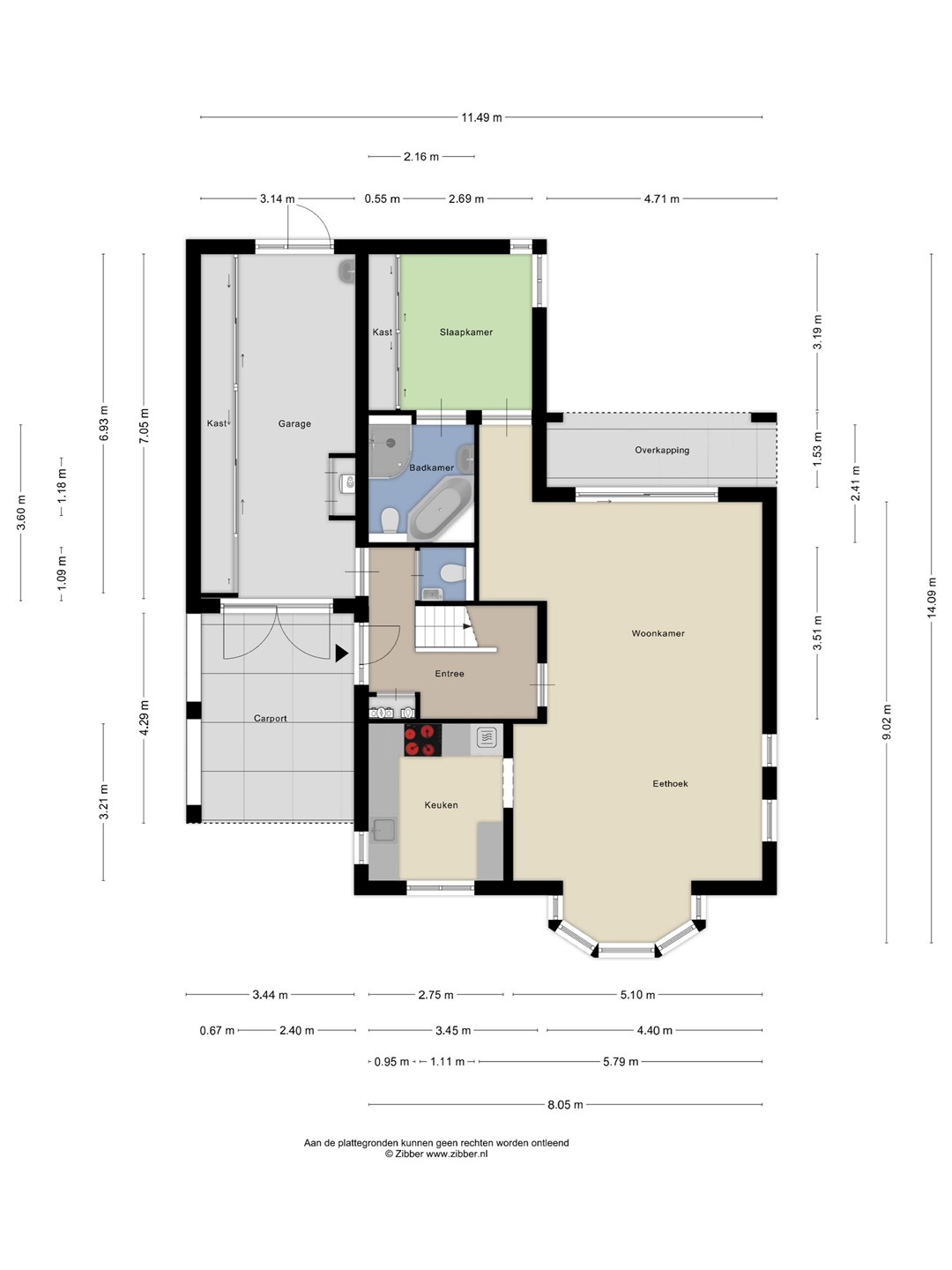
Indeling:

Begane grond:
Je kunt via de voordeur naar binnen of volgens Brabantse traditie via de achterdeur (in dit geval de inpandige garage). Wanneer je via de voordeur/hal de woning betreedt valt direct de ruimtelijkheid van de woning op. Hier bevinden zich de meterkast, garderobe, toiletruimte en de trapopgang naar de eerste verdieping.

De royale woonkamer met erker aan de voorzijde en schuifpui aan de achterzijde is een heerlijke plek om te ontspannen. Dankzij de open indeling en grote raampartijen profiteer je hier van een fijne lichtinval en een ruimtelijk gevoel. De woonkamer loopt naadloos over in de keuken, die absoluut een eyecatcher is. De keuken is in 2022 vervangen en beschikt over een vaatwasser, Bora kookplaat met afzuiging, koelkast en combi-oven.

Via de woonkamer is er toegang naar de slaapkamer met een en-suite badkamer. De slaapkamer ligt aan de achterzijde van de woning en aan de tuin. De wand in de slaapkamer is exclusief bespannen met bedrukt linnen. Echt een eyecatcher. De badkamer is voorzien van een ligbad, toilet en een wastafel. Op de gehele begane grond ligt vloerverwarming. De slaapkamer/badkamer maakt de woning ideaal voor gelijkvloers wonen of als comfortabele gastenkamer.

Eerste verdieping:
Op de eerste verdieping bevinden zich twee zeer ruime slaapkamers. In beide slaapkamers zijn inbouwkasten voor extra opbergruimte. Er is een mogelijkheid om deze kamers te splitsen om hier extra slaapkamers te realiseren. De tweede badkamer op deze verdieping is uitgerust met een douche, wastafel en toilet.

Tweede verdieping:
Via een vlizo trap bereik je de ruime tweede verdieping. Momenteel is dit een open ruimte, maar er zijn volop mogelijkheden om hier bijvoorbeeld twee extra slaapkamers te creëren.

Tuin:
De ruime en keurig aangelegde achtertuin is een heerlijke plek om te ontspannen. Je geniet hier volop van de privacy. De tuin is voorzien van een tuinhuisje voor extra opbergruimte. Er kunnen verschillende zitjes gecreëerd worden in de zon of schaduw. Er is een grote elektrische zonneluifel aanwezig bij de schuifpui. Daarnaast beschikt de woning over een oprit voor meerdere auto’s.

Garage:
De inpandige garage is via de oprit of via de tuin te bereiken. Er is veel opbergruimte in de kastenwand. De CV ketel (Nefit 2020) en de warmte-hybridepomp (2024) zijn ook keurig weggewerkt in een kast in de garage. Verder is er nog een praktische spoelbak.

Ligging:
Het dorp Vinkel biedt de perfecte balans tussen landelijk wonen en de gezelligheid van een dorp, gelegen vlakbij 's-Hertogenbosch en Oss. In Vinkel zelf vind je faciliteiten zoals een basisschool, kinderdagverblijven, supermarkt, huisartspraktijk, sportvoorzieningen en een aantal leuke restaurants (Den Driehoek ligt letterlijk om de hoek, Danny's Eeterij en het Venster. Er is een mooi wandelgebied richting de molen "De Zwaan". De uitvalswegen naar de A59 en de A2 zijn snel en eenvoudig te bereiken.

Bijzonderheden:
* Vrijstaand en een royaal perceel
* Levensloopbestendig met slaapkamer en badkamer op de begane grond
* Stijlvolle keuken met hoogwaardige apparatuur
* Heerlijke tuin met elektrische zonneluifel en veel privacy
* Parkeren op eigen terrein
* Voorzien van 14 zonnepanelen (2018)
* Hybride warmtepomp (2024)
* Vloerverwarming gehele begane grond
* Energielabel A
* Rolluiken deels aanwezig
* Rustige ligging aan een doodlopende straat en speeltuin om de hoek

Kaart

Kenmerken

Overdracht

Referentienummer
00067
Vraagprijs
€ 675.000,- k.k.
Status
Verkocht onder voorbehoud
Aanvaarding
In overleg
Aangeboden sinds
Vrijdag 7 november 2025
Laatste wijziging
Donderdag 27 november 2025

Bouw

Type object
Woonhuis, eengezinswoning, vrijstaande woning
Soort bouw
Bestaande bouw
Bouwperiode
1999
Dakbedekking
Dakpannen
Type dak
Zadeldak
Isolatievormen
Dakisolatie
Dubbel glas
HR-glas
Muurisolatie
Vloerisolatie

Oppervlaktes en inhoud

Perceeloppervlakte
465 m²
Woonoppervlakte
140 m²
Inhoud
668 m³
Oppervlakte overige inpandige ruimten
39 m²
Oppervlakte externe bergruimte
8 m²
Oppervlakte gebouwgebonden buitenruimte
20 m²

Indeling

Aantal bouwlagen
3
Aantal kamers
4 (waarvan 3 slaapkamers)
Aantal badkamers
2 (en 1 apart toilet)

Locatie

Ligging
Aan rustige weg
In woonwijk
Nabij school

Tuin

Type
Tuin rondom
Hoofdtuin
Ja
Oriëntering
Noord-oost
Heeft een achterom
Ja
Staat
Prachtig aangelegd

Energieverbruik

Energielabel
A

CV ketel

CV ketel
Nefit
Warmtebron
Gas
Bouwjaar
2020
Eigendom
Eigendom

Uitrusting

Warm water
CV-ketel
Verwarmingssysteem
Centrale verwarming
Vloerverwarming (gedeeltelijk)
Warmtepomp
Badkamervoorzieningen Badkamer 1
Douche
Ligbad
Toilet
Wastafel
Badkamervoorzieningen Badkamer 2
Douche
Toilet
Wastafel
Parkeergelegenheid
Inpandige garage
Tuin aanwezig
Ja
Heeft een garage
Ja
Heeft schuur/berging
Ja
Heeft een dakraam
Ja
Heeft een schuifpui
Ja
Heeft zonnepanelen
Ja

Kadastrale gegevens

Kadastrale aanduiding
Nuland C 3407
Perceeloppervlakte
465 m²
Omvang
Geheel perceel
Eigendomsituatie
Eigen grond

Brochure(s) en overige bijlagen

Populierenstraat 12, 5382 KG VINKEL (1) Download