Verkocht:Jan Heijmanslaan 65, 5246 BK Rosmalen - Foto
Verkocht
+29

Jan Heijmanslaan 65 5246 BK Rosmalen

  • Woonhuis
  • 4 kamers
  • 3 slaapkamers
  • 1 badkamers
  • Bouwjaar 1965
  • 242 m² perceeloppervlakte
  • 138 m² gebruiksoppervlakte
  • C Energielabel C

Beschrijving

Keurig onderhouden woning met multifunctionele ruimte op de begane grond, moderne afwerking en zonnige tuin op het zuiden!

Ben je op zoek naar een verrassende woning met volop mogelijkheden? Deze keurig onderhouden woning in de geliefde wijk Hintham-Zuid heeft alles in huis. Een stijlvolle woonkamer, moderne open keuken, drie slaapkamers, een multifunctionele ruimte op de begane grond én een zonnige tuin met fraaie overkapping. Dankzij de centrale ligging zijn alle voorzieningen binnen handbereik én geniet je van rust en groen in de directe omgeving.

Indeling:

Begane grond:
Je komt binnen via de nette hal met meterkast, handige trapkast en modern toilet met fonteintje. De lichte woonkamer is voorzien van een sfeervolle haard (elektrisch), grote raampartijen voor veel daglicht en een fraaie tegelvloer. De open keuken aan de achterzijde is uitgerust met alle wenselijke inbouwapparatuur, waaronder een 5-pits gaskookplaat, combimagnetron, vaatwasser, koelkast en afzuigkap. De CV-ketel is keurig weggewerkt in een keukenkast en een airco zorgt hier voor extra comfort op warme dagen.

Grenzend aan de keuken bevindt zich een multifunctionele ruimte met vloerverwarming. Ideaal als thuiswerkplek, speelkamer, extra slaapkamer of praktijkruimte. Voorheen bevond zich hier een extra toilet. Momenteel is het ingericht als wasruimte met aansluitingen voor de wasmachine en droger.

Eerste verdieping:
Op de eerste verdieping bevinden zich drie nette slaapkamers en een moderne badkamer. De gehele verdieping, inclusief trapopgang, is voorzien van comfortabele vloerbedekking. De moderne badkamer is volledig betegeld in lichte kleurstelling en beschikt over een douche, toilet en wastafel.

Tuin:
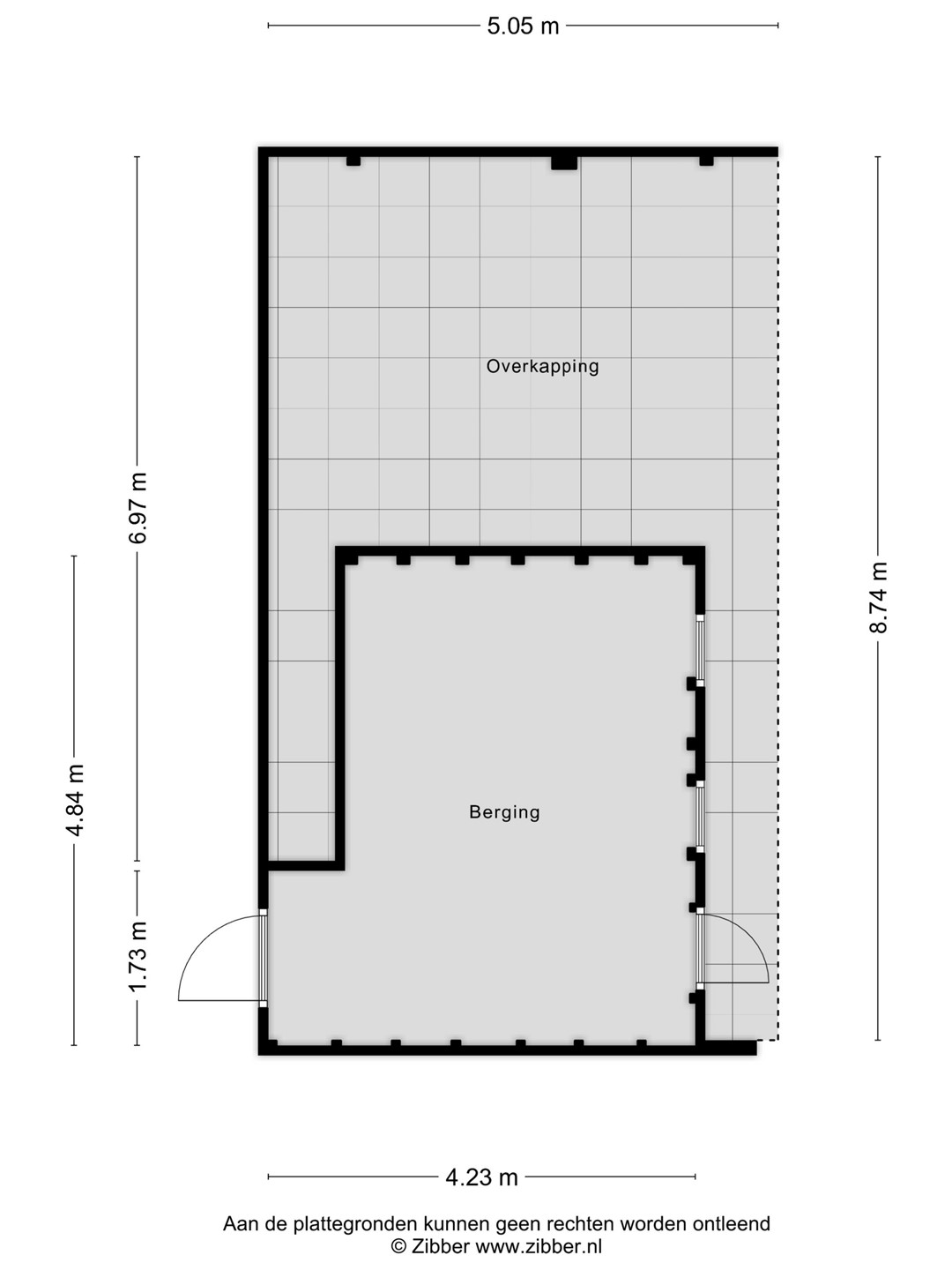
De onderhoudsvriendelijke achtertuin is gelegen op het zuiden en biedt volop ruimte voor een loungehoek én een buitentafel. De stijlvolle overkapping met berging aan de achterzijde maakt het plaatje compleet. Dankzij de achterom is de tuin ook via de achterzijde toegankelijk.

Ligging:
De woning is gunstig gelegen in de groene wijk Hintham-Zuid, met in de directe omgeving scholen, winkels, sportfaciliteiten en zorgvoorzieningen. Zowel het gezellige centrum van ’s-Hertogenbosch als het dorpshart van Rosmalen zijn snel bereikbaar. Voor natuurliefhebbers liggen het IJzeren Kind, de Oosterplas en het Maximakanaal op steenworp afstand. De uitvalswegen A2 en A59 zijn uitstekend bereikbaar, wat deze locatie ideaal maakt voor forenzen.

Bijzonderheden:
* 13 zonnepanelen
* 3 airco's
* kunststof kozijnen
* ideale extra ruimte op de begane grond met vloerverwarming
* plat dak in 2013 vernieuwd
* ideaal parkeren op eigen oprit en aan de achterzijde van de woning

Kaart

Kenmerken

Overdracht

Referentienummer
00041
Vraagprijs
€ 519.000,- k.k.
Status
Verkocht
Aanvaarding
In overleg
Aangeboden sinds
Vrijdag 23 mei 2025
Laatste wijziging
Woensdag 18 juni 2025

Bouw

Type object
Woonhuis, eengezinswoning, geschakelde twee onder een kap woning
Soort bouw
Bestaande bouw
Bouwperiode
1965
Dakbedekking
Bitumen
Type dak
Platdak
Isolatievormen
Dubbel glas

Oppervlaktes en inhoud

Perceeloppervlakte
242 m²
Woonoppervlakte
138 m²
Inhoud
490 m³
Oppervlakte externe bergruimte
18 m²

Indeling

Aantal bouwlagen
2
Aantal kamers
4 (waarvan 3 slaapkamers)
Aantal badkamers
1 (en 1 apart toilet)

Energieverbruik

Energielabel
C

CV ketel

CV ketel
Remeha
Warmtebron
Gas
Bouwjaar
2017
Eigendom
Eigendom

Uitrusting

Warm water
CV-ketel
Verwarmingssysteem
Airconditioning
Badkamervoorzieningen
Douche
Toilet
Wastafel
Wastafelmeubel
Heeft airco
Ja
Heeft rolluiken
Ja
Heeft schuur/berging
Ja
Heeft zonnepanelen
Ja

Kadastrale gegevens

Kadastrale aanduiding
Rosmalen E 3529
Perceeloppervlakte
242 m²
Omvang
Geheel perceel
Eigendomsituatie
Eigen grond

Brochure(s) en overige bijlagen

Jan Heijmanslaan 65, 5246 BK ROSMALEN (1) Download