Verkocht:Haarsteegsestraat 29C, 5254 JN Haarsteeg - Foto
Verkocht
+17

Haarsteegsestraat 29C 5254 JN Haarsteeg

  • Appartement
  • 2 kamers
  • 1 slaapkamer(s)
  • 1 badkamer
  • Bouwjaar 2000
  • 70 m² gebruiksoppervlakte
  • A Energielabel A

Beschrijving

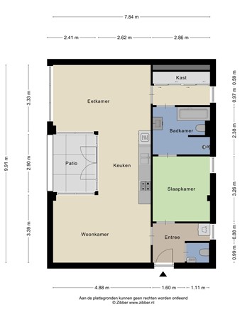
Dit leuke appartement op de begane grond maakt onderdeel uit van een keurig onderhouden en kleinschalig complex met 5 appartementen wat in 2010 gebouwd is. Er is een woonkamer met tuindeuren naar de patio, open keuken, slaapkamer, kastenkamer, complete badkamer, separaat toilet en een eigen parkeerplaats met berging.

Indeling:
Aan de achterzijde van het complex is via een ijzeren poort toegang tot het appartement.

Appartement:
Entree met een separaat toilet met wastafel en de meterkast. Het appartement heeft een woonkamer, openslaande deuren naar de patio. In het midden van de woonkamer bevindt zich de keuken voorzien van een koelkast, vrieskast, vaatwasmachine, 5 pits gaskookplaat, afzuigkap en combi-oven. Verder is er een kastenkamer. De complete badkamer is voorzien van een ligbad, douche , toilet en wastafel. Doordat alles gelijkvloers is dit een ideale levensloopbestendige woning.

Berging:
De stenen berging bevindt zich naast de ingang naar het appartement en is ideaal voor extra opslag.

Ligging:
Hoewel Haarsteeg een rustige plek is, ben je zo in Vlijmen en ligt het gunstig ten opzichte van grote steden zoals ’s-Hertogenbosch en Waalwijk. Maar je hoeft voor basisvoorzieningen zoals winkels, scholen en sportfaciliteiten zeker het dorp niet uit. Ook voor natuurliefhebbers biedt de omgeving van Haarsteeg een tal aan mogelijkheden zoals het Haarsteegse Wiel waar je heerlijk kunt zwemmen.

Bijzonderheden:
* Energielabel A
* Kleinschalig complex
* Complete badkamer
* Walk in closet
* Bushalte nagenoeg voor de deur
* Eigen berging en parkeerplaats
* VVE kosten € 230,- per maand. Dit is incl. voorschot gas, water en licht

Kaart

Kenmerken

Overdracht

Referentienummer
00054
Vraagprijs
€ 275.000,- k.k.
Inrichting
Niet gestoffeerd
Inrichting
Niet gemeubileerd
Status
Verkocht
Aanvaarding
In overleg
Aangeboden sinds
Maandag 14 juli 2025
Laatste wijziging
Donderdag 21 augustus 2025

Bouw

Type object
Appartement, benedenwoning
Woonlaag
1e woonlaag
Soort bouw
Bestaande bouw
Bouwperiode
2000
Dakbedekking
Dakpannen
Type dak
Zadeldak
Isolatievormen
Dubbel glas
Muurisolatie
Vloerisolatie

Oppervlaktes en inhoud

Woonoppervlakte
70 m²
Inhoud
229 m³
Oppervlakte externe bergruimte
4 m²
Oppervlakte gebouwgebonden buitenruimte
6 m²

Indeling

Aantal bouwlagen
1
Aantal kamers
2 (waarvan 1 slaapkamer)
Aantal badkamers
1

Tuin

Type
Patio

Energieverbruik

Energielabel
A

CV ketel

Warmtebron
Gas
Bouwjaar
2010
Eigendom
Eigendom

Uitrusting

Warm water
CV-ketel
Verwarmingssysteem
Centrale verwarming
Vloerverwarming
Tuin aanwezig
Ja
Heeft schuur/berging
Ja

Vereniging van Eigenaren

Opstal verzekering
Ja

Kadastrale gegevens

Kadastrale aanduiding
Heusden N 7730
Omvang
Appartementsrecht of complex
Eigendomsituatie
Eigen grond

Media

Plattegronden