Verkocht onder voorbehoud:Seldensate 31, 5235 CA 's-Hertogenbosch - Foto
Verkocht onder voorbehoud
+33

Seldensate 31 5235 CA 's-Hertogenbosch € 480.000,- k.k.

  • Woonhuis
  • 4 kamers
  • 3 slaapkamers
  • 1 badkamer
  • Bouwjaar 1980
  • 136 m² perceeloppervlakte
  • 130 m² gebruiksoppervlakte
  • C Energielabel C

Beschrijving

In de groene wijk Maaspoort, op loopafstand van winkelcentrum Maaspoort en het Burgemeester van Swietenpark ligt de rustige woonstraat Seldensate. Een prettige omgeving met veel groen, speeltuintjes en parkeergelegenheid direct achter de woning. Achter deze gevel schuilt verrassend veel ruimte en wooncomfort. Op de begane grond vind je een royale woonkamer met moderne keuken en volop lichtinval. De eerste verdieping beschikt over twee slaapkamers en een zeer ruime comfortabele badkamer. Op de tweede verdieping bevindt zich de grote master bedroom én een aparte ruimte die ideaal is als was- en opslagruimte. Achter de woning ligt een fijne tuin met berging, perfect om in alle rust van buiten te genieten.

INDELING:
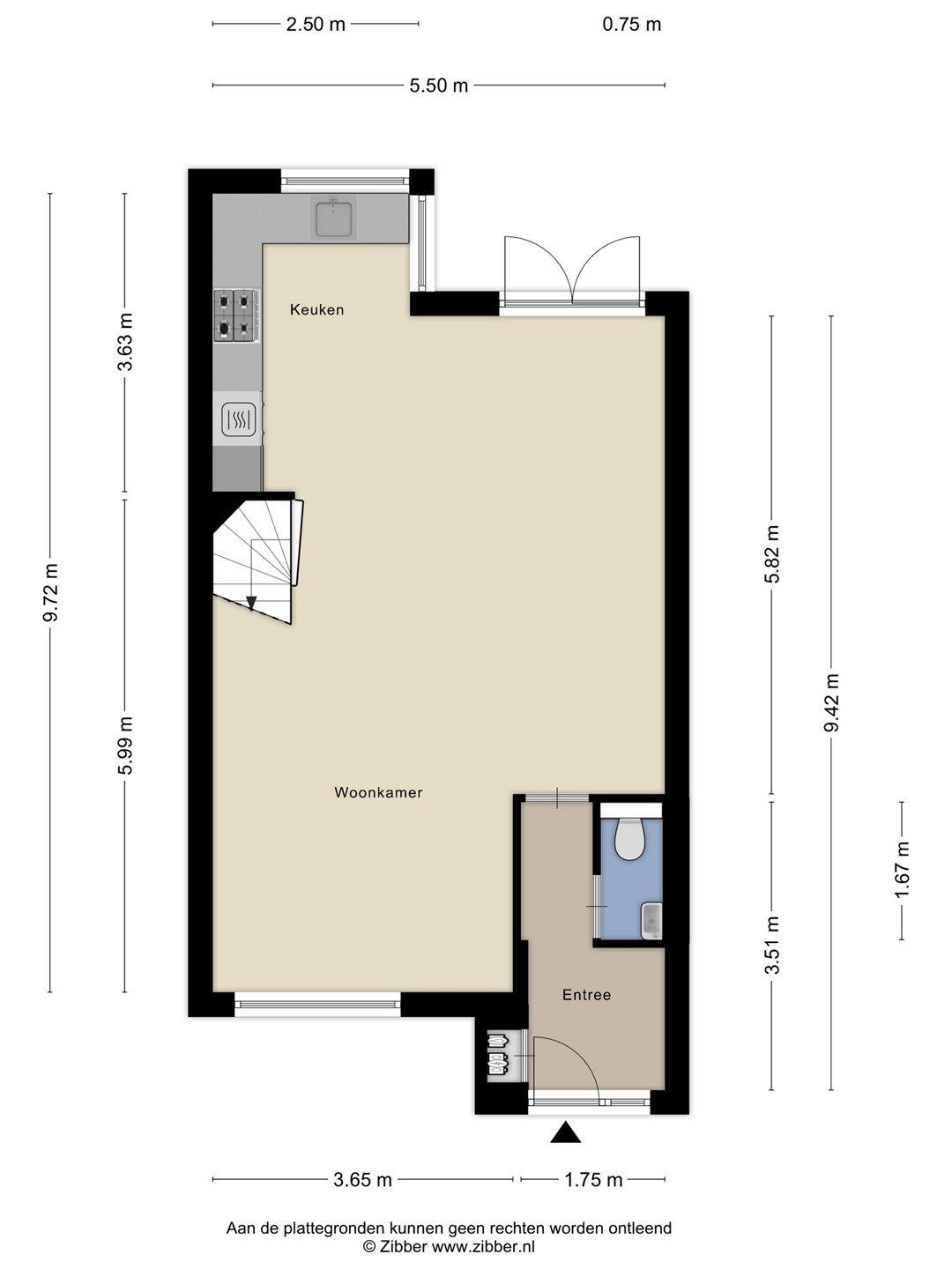
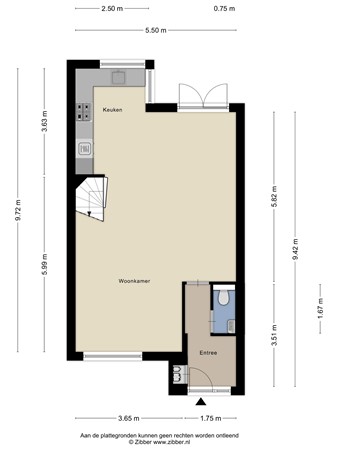
Begane grond:
Hal, modern toilet met fontein, garderobe en de meterkast. De riante woonkamer met veel lichtinval heeft een mooi zicht op de waterloop en het nodige groen aan de overkant van de straat. Er ligt een fraaie houten vloer en strak gestuukte wanden. De open keuken aan de achterzijde heeft zicht op de tuin en is van veel gemakken voorzien. Er is een combi-oven, vaatwasser, 4 pits gas kookplaat, koel-vries combinatie en afzuigkap aanwezig. Vanuit de woonkamer/keuken is er toegang tot de tuin via de openslaande tuindeuren.

Eerste verdieping:
De overloop geeft toegang tot twee slaapkamers en de verrassend ruime badkamer. De voormalige badkamer en slaapkamer zijn samengevoegd zodat er een luxe en zeer ruime badkamer is ontstaan. Deze beschikt over een tweepersoons ligbad, dubbele wastafel, een toilet en een ruime inloopdouche met regendouche. Ook is er een raam voor lichtinval en extra ventilatie.

Tweede verdieping:
Deze is te bereiken via een vaste trap. Deze verdieping is als volwaardige woonlaag te gebruiken. Allereerst de overloop. Er is een aparte ruimte met dakraam voor de opstelling voor de wasmachine, droger en CV installatie en er is meer dan voldoende opbergruimte. En dan de fantastische derde slaapkamer. Wat een mooie riante slaapkamer is dit. Er is een mooi hoog plafond, een wastafelmeubel, strak gestuukte wanden en een laminaatvloer.

Tuin:
De op het Noord-Oosten gelegen achtertuin is speels aangelegd en voorzien van een stenen berging en achterom welke direct grenst aan een speelveld met speeltoestellen en de parkeerplaatsen.

Ligging:
De (gezins)vriendelijke woning aan de Seldensate is gunstig gelegen aan een autovrije straat met waterloop, in de gemoedelijke en groene woonwijk Maaspoort. Achter de woning zijn voldoende parkeerplaatsen. Deze gunstige ligging uit zich in een goede bereikbaarheid, rustig wonen en diverse sociale voorzieningen in de directe omgeving. Op slechts vijf minuten lopen ligt het overdekt winkelcentrum Maaspoort waar je onder meer terecht kunt voor de dagelijkse boodschappen. Basisscholen, kinderdagverblijven en peuterspeelzalen zijn in de wijk Maaspoort voldoende aanwezig en in de directe omgeving te vinden. Dit geldt ook voor speelvoorzieningen voor de kinderen. Sportvoorzieningen en uitvalswegen naar alle windstreken zijn prima te bereiken. Op korte loopafstand heb je het recreatiegebied Burgemeester van Swietenpark met de Noorderplas. Op fietsafstand is het Maasoever gebied met zijn prachtige natuur gelegen, ideaal voor de liefhebber van een wandeling of fietstocht. Het bruisende centrum van Den Bosch is met het openbaar vervoer, de auto en de fiets ook uitstekend bereikbaar. De bushalte is letterlijk op steenworpafstand.

BIJZONDERHEDEN:
* Rolluiken aanwezig op elke slaapkamer
* Voldoende parkeergelegenheid achter de woning
* Geweldige badkamer
* Zeer ruime tweede verdieping
* In 2015 nieuwe radiatoren geplaatst en de meterkast vernieuwd
* Gunstig gelegen in een fijne woonomgeving
* Een ideale (gezins)woning

Kaart

Kenmerken

Overdracht

Referentienummer
00085
Vraagprijs
€ 480.000,- k.k.
Status
Verkocht onder voorbehoud
Aanvaarding
In overleg
Aangeboden sinds
Dinsdag 24 februari 2026
Laatste wijziging
Woensdag 25 maart 2026

Bouw

Type object
Woonhuis, eengezinswoning, tussenwoning
Soort bouw
Bestaande bouw
Bouwperiode
1980
Dakbedekking
Dakpannen
Type dak
Zadeldak

Oppervlaktes en inhoud

Perceeloppervlakte
136 m²
Woonoppervlakte
130 m²
Inhoud
462 m³
Oppervlakte externe bergruimte
6 m²

Indeling

Aantal bouwlagen
3
Aantal kamers
4 (waarvan 3 slaapkamers)
Aantal badkamers
1 (en 1 apart toilet)

Locatie

Ligging
Dichtbij openbaar vervoer
In woonwijk
Nabij school
Nabij snelweg

Energieverbruik

Energielabel
C

Uitrusting

Keukenvoorzieningen
Inbouwapparatuur
Badkamervoorzieningen
Douche
Ligbad
Toilet
Vloerverwarming
Wastafel
Wastafelmeubel

Kadastrale gegevens

Kadastrale aanduiding
's-Hertogenbosch T 722
Perceeloppervlakte
136 m²
Omvang
Geheel perceel
Eigendomsituatie
Eigen grond

Brochure(s) en overige bijlagen

Seldensate 31, 5235 CA 'S-HERTOGENBOSCH (1) Download