Nieuw in verkoop:Palmboomstraat 17, 5213 VD 's-Hertogenbosch - Foto
Nieuw in verkoop
+24

Palmboomstraat 17 5213 VD 's-Hertogenbosch € 315.000,- k.k.

  • Woonhuis
  • 4 kamers
  • 3 slaapkamers
  • 1 badkamers
  • Bouwjaar 1940
  • 67 m² perceeloppervlakte
  • 90 m² gebruiksoppervlakte
  • E Energielabel E

Beschrijving

Ideale woning met potentie voor bijvoorbeeld starters met twee rechterhanden!

De woning beschikt onder andere over een woonkamer, keuken, badkamer, stadstuin, twee slaapkamers op de eerste verdieping en een derde slaapkamer met dakkapel op de tweede verdieping.

Indeling:

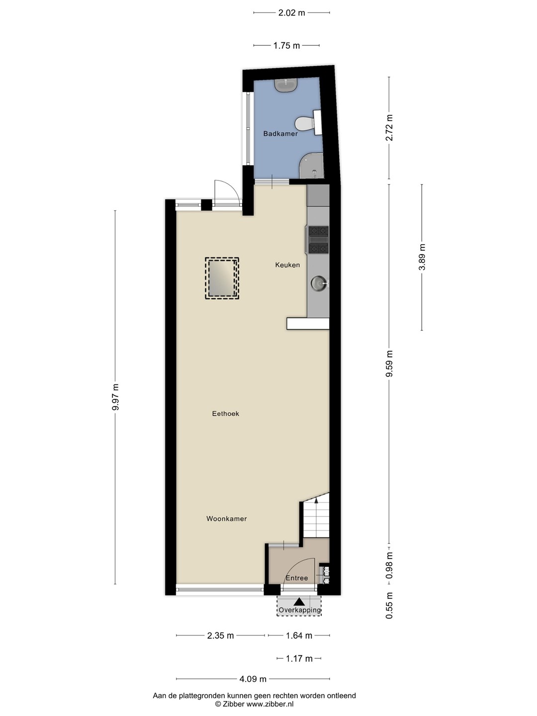
Begane grond:
Vanuit de hal, met meterkast kom je terecht in de woonkamer. De woonkamer is afgewerkt met een tegelvloer. De keuken is aan de achterzijde van de woning gelegen en beschikt over diverse apparatuur zoals een gaskookplaat, afzuigkap, combi-oven en koelkast. Vanuit de keuken is de badkamer te bereiken. Deze is
voorzien van een douche, toilet en wastafel. De patio tuin is vanuit de woonkamer te betreden.

Eerste verdieping:
De overloop biedt toegang tot de twee ruime slaapkamers. Deze zijn voorzien van vloerbedekking. In de grote slaapkamer bevindt zich de doorgang via een vaste trap naar de zolder.

Tweede verdieping:
Via een vaste trap kom je op de tweede verdieping. Hier is de derde slaapkamer met dakkapel te vinden. Tevens is er voldoende opbergruimte en de CV ketel is hier geplaatst.

Buitenruimte:
De stadstuin met achterom is volledig bestraat en dus onderhoudsvriendelijk.

Ligging:
Deze centraal gelegen woning ligt op korte afstand van de recreatieplas De IJzeren Vrouw met het Prins Hendrikpark. Tevens vind je in de nabijheid verschillende winkels, scholen en station-Oost. Het gezellige stadscentrum van 's-Hertogenbosch is in minder dan 5 minuten fietsen bereikbaar en de snelweg A2 ligt slechts enkele minuten verwijderd. Om de hoek is er een groot plantsoen met speelvoorzieningen en langs de Aa kun je heerlijk wandelen. Parkeren kun je recht voor de deur.

Kortom deze woning heeft wat liefde en aandacht nodig maar is geheel naar eigen smaak en wensen op te knappen.

Kaart

Kenmerken

Overdracht

Referentienummer
00086
Vraagprijs
€ 315.000,- k.k.
Status
Nieuw in verkoop
Aanvaarding
In overleg
Aangeboden sinds
Woensdag 4 februari 2026

Bouw

Type object
Woonhuis, eengezinswoning, tussenwoning
Soort bouw
Bestaande bouw
Bouwperiode
1940
Dakbedekking
Dakpannen
Type dak
Zadeldak
Isolatievormen
Gedeeltelijk dubbel glas

Oppervlaktes en inhoud

Perceeloppervlakte
67 m²
Woonoppervlakte
90 m²
Inhoud
316 m³
Oppervlakte gebouwgebonden buitenruimte
0,6 m²

Indeling

Aantal bouwlagen
3
Aantal kamers
4 (waarvan 3 slaapkamers)
Aantal badkamers
1

Locatie

Ligging
Dichtbij openbaar vervoer
In woonwijk

Tuin

Type
Patio
Staat
Normaal

Energieverbruik

Energielabel
E

CV ketel

CV ketel
Intergas
Warmtebron
Gas
Eigendom
Eigendom

Uitrusting

Warm water
CV-ketel
Geiser
Verwarmingssysteem
Centrale verwarming
Badkamervoorzieningen
Douche
Toilet
Wastafel
Wastafelmeubel
Tuin aanwezig
Ja

Kadastrale gegevens

Kadastrale aanduiding
's-Hertogenbosch C 2963
Perceeloppervlakte
67 m²
Omvang
Geheel perceel
Eigendomsituatie
Eigen grond

Brochure(s) en overige bijlagen

Palmboomstraat 17, 5213 VD 'S-HERTOGENBOSCH (1) Download