Verkocht:Frederik Hendriklaan 86, 5212 BH 's-Hertogenbosch - Foto
Verkocht
+51

Frederik Hendriklaan 86 5212 BH 's-Hertogenbosch

  • Woonhuis
  • 5 kamers
  • 4 slaapkamers
  • 1 badkamers
  • Bouwjaar 1938
  • 156 m² perceeloppervlakte
  • 150 m² gebruiksoppervlakte
  • E Energielabel E

Beschrijving

Bent u op zoek naar een ruime woning die historie en karakter ademt, vol authentieke details? Deze woning uit ca. 1930, gelegen in de zeer gewilde wijk De Vliert, biedt niet alleen ca. 150 m² aan woonoppervlak op een perceel van 156 m², maar ook een schat aan originele elementen. Van schitterende glas-in-loodramen, betonemail lambriseringen, granito vloer in de hal tot een sfeervolle woonkamer en Engele serre. Dit huis is een verborgen parel, klaar om ontdekt te worden.

Deze sfeervolle en verrassende woning beschikt over vier slaapkamers, een ruime badkamer en een fijne stadstuin en garage. De woning ligt op de hoek van de Frederik Hendriklaan en de Monseigneur Diepenstraat en is op loop/fietsafstand van het centrum van ’s-Hertogenbosch.

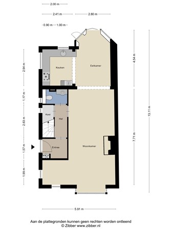
Entree:
Aan de zijkant van de woning bevindt zich de voordeur. Deze biedt toegang tot de hal met een prachtige granito vloer. Hier is de garderobe en de meterkast (gemoderniseerd) en verder het toilet, een kelderkast en de trapopgang naar de eerste verdieping.

Begane grond:
De woonkamer is toegankelijk vanuit de entree. De vele raampartijen zorgen voor een mooie lichtinval. Aan de voorzijde bevindt zich een ruime zithoek met een karakteristieke erker en open haard met bijbehorende schouw. De open keuken bevindt zich aan de achterzijde. De keuken is voorzien van een vaatwasser, combi-magnetron, koelkast, 5 pits gaskookplaat en afzuigkap. Hier ligt een praktische tegelvloer met vloerverwarming. Wat in deze ruimte direct opvalt is de prachtige romantische Engelse serre met bijzondere details. Er komt heerlijk veel licht door naar binnen en het geeft een ruimtelijk gevoel. Vanuit de serre is er toegang tot de tuin.

Eerste verdieping:
De overloop met de prachtige glas in lood ramen (met rolluiken) en ornamenten biedt toegang tot twee ruime slaapkamers (met inbouwkasten), de badkamer en de vaste trap naar de zolder. De slaapkamer aan de voorzijde is heerlijk ruim. Voorheen waren dit twee slaapkamers en beschikt over een airconditioning. De tweede slaapkamer is ook van een prima formaat en biedt uitzicht op de achtertuin. De badkamer is uitgerust met een douche, ligbad, toilet en dubbele wastafel en een designradiator.

Tweede verdieping:
Via de vaste trap bereik je de overloop op zolder. Hier bevinden zich de aansluitingen voor wasmachine en droger, evenals toegang tot de derde en vierde slaapkamer. De slaapkamers zijn voorzien van een dakkappel en de slaapkamer aan de voorzijde is voorzien van een wastafel.

Tuin:
De gezellige achtertuin is op het noorden gelegen en is bereikbaar via de keuken en de poort vanaf de wegzijde. En als bonus is er nog een garage/berging. De voortuin ligt op het zuiden. En de boom zorgt voor natuurlijke schaduw in de woonkamer.

Ligging:
De Frederik Hendriklaan bevindt in de geliefde en groene wijk De Vliert. Deze wijk staat bekend om haar karakteristieke woningen en rustige uitstraling, wat samen met de centrale ligging zorgt voor een bijzonder populaire woonomgeving. Op slechts enkele loop/fiets minuten fietsen bereikt u het bruisende hart van ’s-Hertogenbosch. Hier geniet u van alles wat de bourgondische hoofdstad te bieden heeft. Voor wie graag de rust opzoekt, ligt de ijzeren vrouw en het Prins Hendrikpark op slechts enkele minuten loopafstand, een ideale plek om te wandelen, sporten of ontspannen.
Ook voor forenzen is deze locatie ideaal. Zowel het NS-station ’s-Hertogenbosch-West als het Centraal Station zijn snel bereikbaar, evenals de uitvalswegen richting de belangrijkste snelwegen. In de directe omgeving vindt u bovendien diverse voorzieningen zoals een kinderdagverblijf en basisschool. De bushalte en een speeltuintje zijn tegenover de woning te vinden.

BIJZONDERHEDEN
- Sfeervolle jaren '30 woning met authentieke details
- Stadstuin met garage/berging
- Gewilde en populaire wijk op fietsafstand van de binnenstad
- Vier slaapkamers
- Ruime badkamer

Kaart

Kenmerken

Overdracht

Referentienummer
00058
Vraagprijs
€ 775.000,- k.k.
Status
Verkocht
Aanvaarding
In overleg
Aangeboden sinds
Maandag 1 september 2025
Laatste wijziging
Woensdag 25 februari 2026

Bouw

Type object
Woonhuis, eengezinswoning, eind woning
Soort bouw
Bestaande bouw
Bouwperiode
1938
Dakbedekking
Dakpannen
Type dak
Dwarskap
Isolatievormen
Grotendeels dubbel glas

Oppervlaktes en inhoud

Perceeloppervlakte
156 m²
Woonoppervlakte
150 m²
Inhoud
534 m³
Oppervlakte externe bergruimte
16 m²

Indeling

Aantal bouwlagen
3
Aantal kamers
5 (waarvan 4 slaapkamers)
Aantal badkamers
1 (en 1 apart toilet)

Locatie

Ligging
Dichtbij openbaar vervoer
In woonwijk
Nabij school
Nabij snelweg

Tuin

Type
Achtertuin
Hoofdtuin
Ja
Oriëntering
Noorden
Heeft een achterom
Ja
Staat
Normaal

Energieverbruik

Energielabel
E

CV ketel

CV ketel
Proline NxT HRC 24
Warmtebron
Gas
Bouwjaar
2017
Eigendom
Eigendom

Uitrusting

Warm water
CV-ketel
Verwarmingssysteem
Centrale verwarming
Vloerverwarming (gedeeltelijk)
Badkamervoorzieningen
Douche
Dubbele wastafel
Ligbad
Toilet
Parkeergelegenheid
Vrijstaande stenen garage
Tuin aanwezig
Ja
Heeft een garage
Ja
Heeft een schuifpui
Ja

Kadastrale gegevens

Kadastrale aanduiding
's-Hertogenbosch C 2625
Perceeloppervlakte
156 m²
Omvang
Geheel perceel
Eigendomsituatie
Eigen grond

Brochure(s) en overige bijlagen

Frederik Hendriklaan 86, 5212 BH 'S-HERTOGENBOSCH (1) Download